Let op! Deze woning is verkocht onder voorbehoud. U kunt nog steeds belangstelling tonen.
Zuideinde - 4-onder-1-kap woning - bouwnummer 5
Pak deze unieke kans om een 4-onder-1-kap woning te verwerven op een prachtige locatie aan het Zuideinde 433, Amsterdam Noord. Deze woningen bieden een ideale omgeving voor gezinnen en jonge professionals die op zoek zijn naar comfort en stijl. De inschrijving is nu geopend, dus mis deze kans niet om jouw droomhuis te realiseren!
Adres
Zuideinde 433 -5
1035 PG Amsterdam
Type woning
4-onder-1-kap
Gebruiksoppervlakte
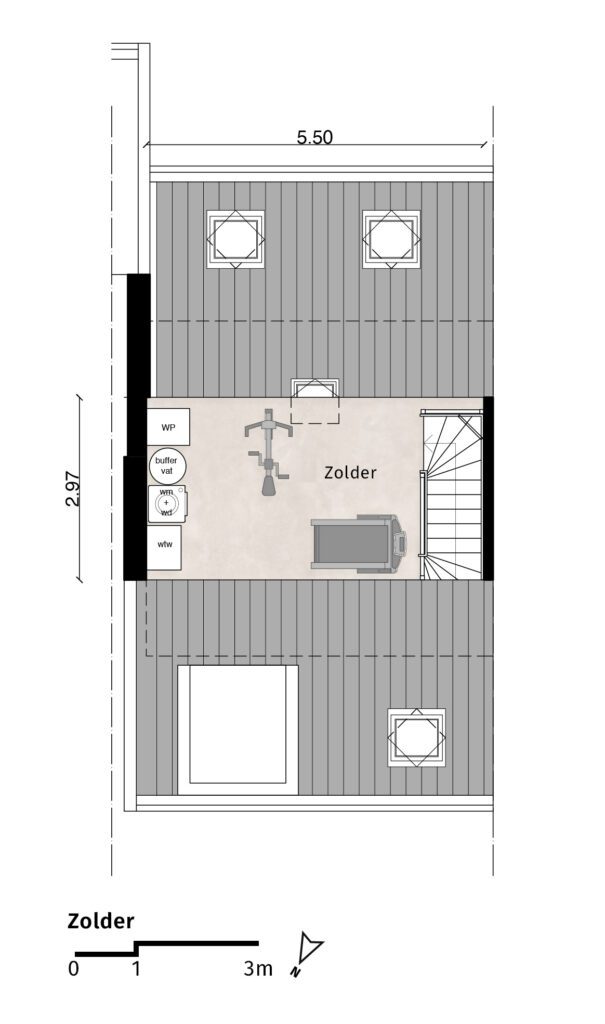
116 m²
Perceeloppervlakte
98 m²
Berging
6 m², vrijstaand
Aantal parkeerplaatsen
2 op eigen terrein, niet grenzend aan perceel
Status
Met het invullen van het formulier voor de woning, stem je ermee in dat wij contact met je opnemen. We gebruiken je gegevens uitsluitend voor dit doel en zorgen ervoor dat je informatie veilig en vertrouwelijk wordt behandeld.
Contact
Wil je weten wat je financiële ruimte is voor deze woning? Doe dan een vrijblijvende check bij de ING.
Bezoekadres:
Strawinskylaan 257
1077 XX Amsterdam
Voor vragen over dit project kunt u contact opnemen met de verkopend makelaar:
Ons Huis Vastgoed
info@onshuisvastgoed.nl
T: +31 (0)30 – 231 21 61
Copyright © 2025 | The Firm | Site by Innosons











