Zuideinde - Vrijstaande woning
Pak deze unieke kans om een vrijstaande woning te verwerven op een prachtige locatie aan het Zuideinde 433, Amsterdam Noord. Deze woningen bieden een ideale omgeving voor gezinnen en jonge professionals die op zoek zijn naar comfort en stijl. De inschrijving is nu geopend, dus mis deze kans niet om jouw droomhuis te realiseren!
Adres
Zuideinde 433
1035 PG Amsterdam
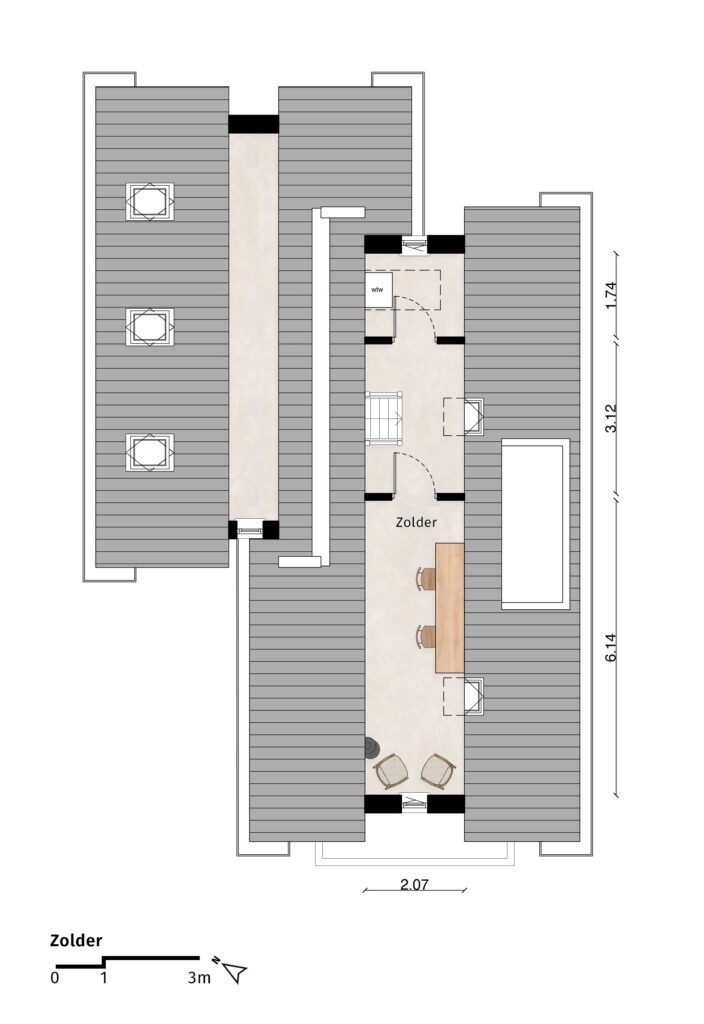
Type woning
vrijstaande woning
Gebruiksoppervlakte
205 m²
Perceeloppervlakte
348 m²
Berging
inpandige berging
Aantal parkeerplaatsen
2 op eigen terrein
Status
Vrij op naamprijs
EUR 1.495.000
Met het invullen van het formulier voor de woning, stem je ermee in dat wij contact met je opnemen. We gebruiken je gegevens uitsluitend voor dit doel en zorgen ervoor dat je informatie veilig en vertrouwelijk wordt behandeld.
Contact
Wil je weten wat je financiële ruimte is voor deze woning? Doe dan een vrijblijvende check bij de ING.
Bezoekadres:
Strawinskylaan 257
1077 XX Amsterdam
Voor vragen over dit project kunt u contact opnemen met de verkopend makelaar:
Ons Huis Vastgoed
info@onshuisvastgoed.nl
T: +31 (0)30 – 231 21 61
Copyright © 2025 | The Firm | Site by Innosons














